
【錦粼府】123㎡簡約感現代之家,盛放他們的幸福時光

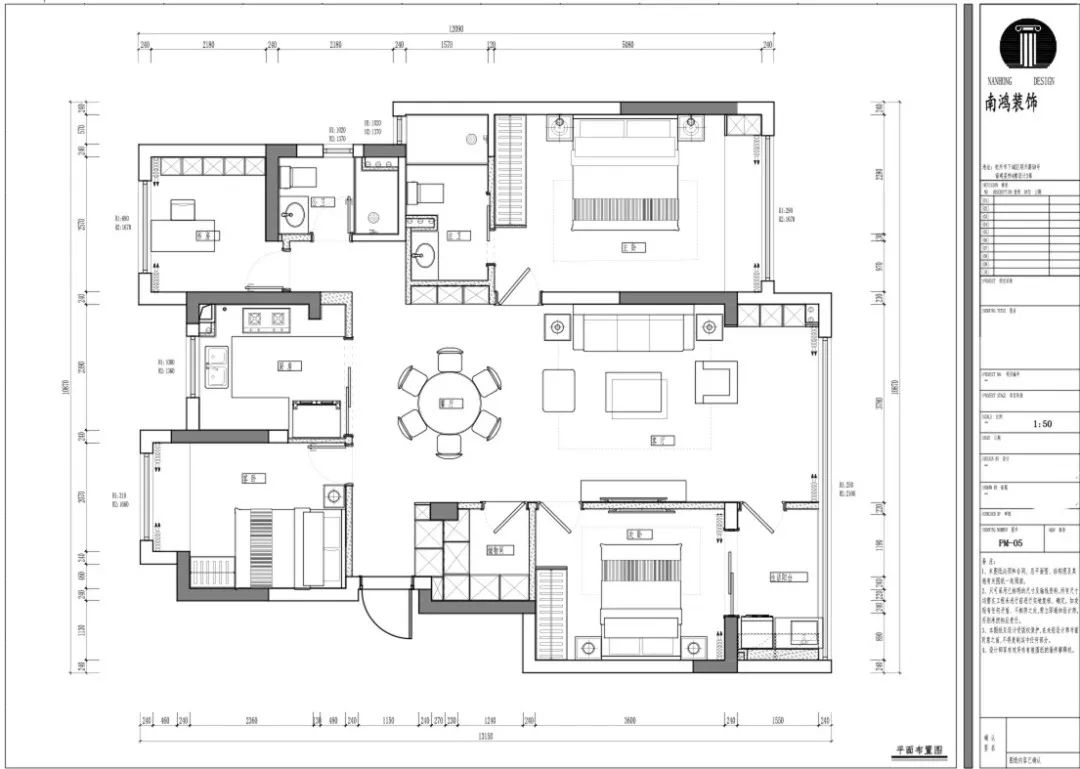
項目信息 / 地址:錦粼府 城市:中國 杭州 戶型:四室兩廳 面積:123㎡ 風格:現代簡約 設計施工:浙江南鴻裝飾 居室整體采用了暖咖色和米灰色的搭配作為時尚的設計基調,利落的黑色點綴,透過輕與重的對比,讓整體空間看起來有格調、有層次,穩重內斂又不失家的溫情感。 戶型解析<< 原戶型比較方正,南北通透,有兩個陽臺,缺點是衛生間跟廚房都比較小。 - 設計改動 - 對廚房進行了外擴,與玄關口的客房墻面拉平;改變了主臥房門的方向,擴展了主衛面積;客廳的陽臺包進,讓客廳看起來更開闊大氣;從次臥的空間對外隔出了獨立的儲藏間,增加了儲物的地方等。 玄關 Hallway / 玄關,潔白的底色放大明凈視感,使人在入戶的那一刻便能感知到輕暢的氣息。 客廳 Living Room / 客餐廳居同一空間,視線通暢,動線簡捷。高級灰在室內鋪墊出寧靜柔和的氛圍感,配合直爽線條的勾勒,以及無主燈的設計,搭建起一個純粹的簡約現代居室。 沙發選擇了灰色的磨砂皮材質,坐感相當舒適。毛絨質感的白色單椅與角落的圣誕樹裝飾相搭得宜,夢幻而惹人喜愛。 通往生活陽臺與儲物間的房門均使用隱形門設計,搭配格柵線條,空間立體統一而有層次。 餐廳 Dining Room / 餐廳與廚房相鄰,一側有定制餐邊柜兼水吧臺使用,中間擺上白色巖板圓桌與灰色餐椅,鋪墊簡潔時尚的格調。 廚房 Kitchen / 深淺色調上下搭配的中廚空間,有效避免單一視感,空間也更具層次。 臥室 Bedroom / 明亮通透的主次臥,將裝飾元素精簡到極致,拒絕任何多余的干擾,創造輕盈舒適的最佳睡眠環境。活潑的橙色略做一些點綴,豐富空間的質感。














上一篇:餐廳夠不夠實用,其實還是要看TA
下一篇:比芭比更出圈的,還得是芭比粉!
免費
免費申請戶型規劃
專屬設計師免費1對1全程服務
已經有3792人申請
24小時免費咨詢電話
400-8800-618
你家預算
108080元