當前位置 : 網站首頁 > 裝修資訊 > 紅街公寓137㎡現代風格設計 | 一所明朗簡凈的有愛之家

紅街公寓137㎡現代風格設計 | 一所明朗簡凈的有愛之家

微信圖片_20200512162917.jpg


本案為紅街公寓137方現代風格設計,業主是一對熱愛生活的夫妻倆,有兩位可愛的小公主,希望家里溫馨時尚、簡約大方,同時擁有足夠的收納空間。


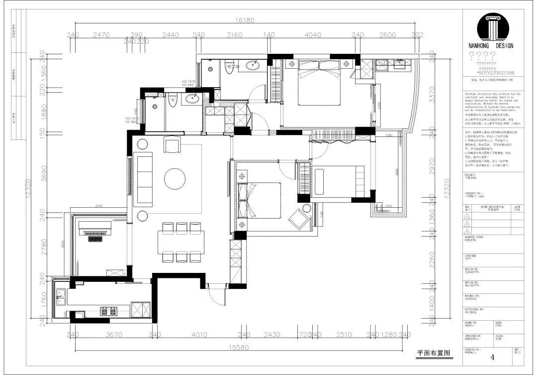
戶 型 圖


微信圖片_20200512163155.jpg



設計說明:


更改了次衛門的方向,將進衛生間門口的過道改成了儲藏間,增加儲物空間;


次臥向兒童房借了衣柜的空間,兒童房又包進陽臺,從而保證兩個區域都能擁有足夠的生活面積。





1.jpg



微信圖片_20200512162949.jpg


客廳,地面通鋪大理石瓷磚,頂面線條極簡,一側背景墻選用大面積KD板包覆,呈現簡約基調。


微信圖片_20200512162952.jpg


客廳與餐廳呈開放式布局,確保空間采光與通透性。家具間不同材質的碰撞,搭配各色靠枕與菱形式樣地毯,打造出輕盈時尚的生活環境。


微信圖片_20200512162954.jpg


客廳望向玄關視角。入戶口設計了功能齊全的玄關柜,滿足業主日常需求。電視背景墻一側,懸空式地臺取代了傳統電視柜,整體效果看起來更為大氣。



2.jpg



微信圖片_20200512162957.jpg


餐廳,黑色餐桌線條利落,造型簡約,絨面的磚紅色長凳在金色元素的點綴下顯現出小輕奢的格調。



3.jpg



微信圖片_20200512163000.jpg


陽臺與餐廳相鄰,做了一個到頂柜,保留一定儲物空間。儲物柜旁還設計了黑板墻,供孩子們盡情發揮自己天馬行空的想象力。


微信圖片_20200512163003.jpg


透過各種充滿童趣的小物件就能看到這個家的有愛氛圍~



4.jpg



微信圖片_20200512163006.jpg


廚房呈L型布局,木質櫥柜搭配黑色拉手和水磨石臺面,簡潔清爽,高低臺的設計更貼合人們日常的下廚習慣。



5.jpg



微信圖片_20200512163010.jpg


主臥,墨綠色背景墻搭配深黑色矮背床,深沉的色系更容易營造靜謐的睡眠氛圍。



6.jpg


兒童房,選用柔和色系搭配各種玩偶元素來裝扮這個童心空間,用上下鋪實現居住功能,樓梯則作為隱蔽的抽屜解決一些儲物問題。



| 地址:紅街公寓

| 面積:137㎡

| 風格:現代

| 設計施工:浙江南鴻裝飾


免費

免費申請戶型規劃

專屬設計師免費1對1全程服務

  • m2

已經有3792人申請

24小時免費咨詢電話

400-8800-618

?
裝修報價

你家預算

108080

  • m2

咨詢熱線:400-8800-618

*為了您的權益,您的隱私將被嚴格保密

×