當前位置 : 網站首頁 > 裝修資訊 > 錢江御府170㎡現代風 | 大橫廳開放布局,無主燈設計彰顯極致簡約

錢江御府170㎡現代風 | 大橫廳開放布局,無主燈設計彰顯極致簡約

微信圖片_20200526095544.jpg


本案為170㎡現代風格設計,業主為一對事業有成的夫婦,家里還有一雙兒女和兩個老人,對居住環境的品質有著較高要求,希望設計師能打造出一個簡約低調、大氣美觀的生活空間。


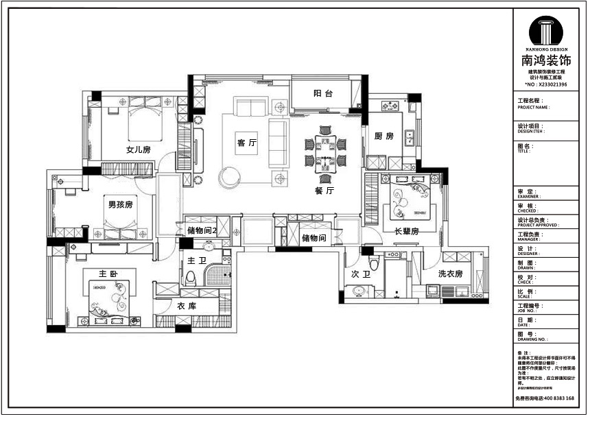
戶 型 圖



存在問題:


原戶型進門就是大開間,沒有門廳;室內儲物空間較少。


標準戶型圖.jpg


解決方式:


· 入戶增設門廳;


· 公共區域設計了兩個儲藏間,并對主臥內的主衛進行改造,把原有的走入式衣柜空間擴大;


· 把原有過度浪費的空間都充分利用了起來,半室外的陽臺、設備陽臺等都引入室內空間。




客 廳


微信圖片_20200526095634.jpg


客廳為橫廳格局,納入其中一個陽臺,視野開闊,采光充足,減少純過道空間,提高戶型使用率。


微信圖片_20200526094055.jpg


干凈利落的空間線條和家具線條,還原最簡單的生活狀態,過道處波紋質感的KD板墻巧妙地延伸視覺。


微信圖片_20200526094058.jpg微信圖片_20200526095734.jpg


整體以高級灰為基調,選用低飽和度色系的軟裝搭配,沉淀出簡約時尚的家居氛圍。靠陽臺處擺放芥末黃單人沙發,提亮空間。


微信圖片_20200526094109.jpg


頂面是無主燈設計,選用當下流行的磁吸軌道燈,在極簡手法上更淋漓盡致。



餐 廳


微信圖片_20200526094112.jpg


餐廳選用大理石餐桌和灰色餐椅,端莊大氣,餐桌旁的黑框清玻移門自然地劃分餐廳與廚房的空間。


微信圖片_20200526095851.jpg

廚 房


微信圖片_20200526094116.jpg


廚房,白凈的基底下,灰藍色櫥柜顯得非常清爽,簡單卻鮮明的色彩搭配,帶來潔凈的視覺效果。



臥 室


微信圖片_20200526094119.jpg


主臥以木色和暖棕色調為主,床背景硬包與時尚壁燈的搭配彰顯空間干練的氣質。


微信圖片_20200526095958.jpg微信圖片_20200526100001.jpg


暖暖的木色,讓人能充分感受到溫和舒適的愜意生活~



兒 童 房


微信圖片_20200526094124.jpg


女孩房,粉色的墻漆裝飾干凈簡單,散發出甜蜜輕柔的少女氣息。


微信圖片_20200526094128.jpg


男孩房,選用男生偏愛的藍色系打造,同客廳一樣包進了陽臺,劃分出學習區的同時能更好地引入自然光線。


微信圖片_20200526100100.jpg


衣柜是現場定制的,精細的定制工藝和金屬門把手輕松提升空間質感。



衛 生 間


微信圖片_20200526094134.jpg

衛生間延續簡潔基調,嵌入式臺盆顏值頗高,白色石紋瓷磚墻地一體,墻上還設計了壁龕增加儲物。



| 地址:錢江御府

| 面積:170㎡

| 風格:現代

| 設計施工:浙江南鴻裝飾


免費

免費申請戶型規劃

專屬設計師免費1對1全程服務

  • m2

已經有3792人申請

24小時免費咨詢電話

400-8800-618

?
裝修報價

你家預算

108080

  • m2

咨詢熱線:400-8800-618

*為了您的權益,您的隱私將被嚴格保密

×