當前位置 : 網站首頁 > 裝修資訊 > 當現代風的簡約撞上輕奢風的精致,這個120㎡的單身空間相當不簡單!

當現代風的簡約撞上輕奢風的精致,這個120㎡的單身空間相當不簡單!

微信圖片_20200609164440.jpg


本案為世貿麗晶城120方現代輕奢風格設計,業主為一名單身男青年,目前家里常住1人,父母偶爾來住,考慮到將來的生活還是保留了三房的功能,期待能擁有一個簡約時尚、素雅大方的家。


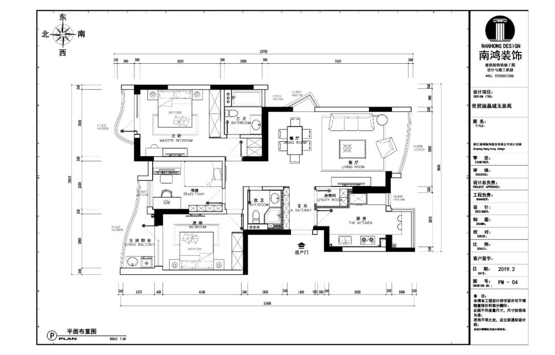
戶 型 圖


微信圖片_20200609164503.jpg


設計說明增加了儲物間;廚房功能放大;考慮到以后居住人口的增加,保留了原始房間。



玄 關  Foyer


微信圖片_20200609164507.jpg


入戶正對餐廳,過道處設計中部與底部留空的玄關柜滿足玄關和公共區域的收納。過道的另一側用KD板包覆,儲物間做了隱形門處理。



客 廳  Living Room


微信圖片_20200609164510.jpg


客廳,高級灰的主調柔和而舒適,軟裝上的色彩比較豐富,搭在一起卻絲毫不顯突兀。


微信圖片_20200609164513.jpg微信圖片_20200609164515.jpg


皮質、絨布、金屬、石材、墻漆......不同的材質被融合在一個空間內,共同呈現出時尚的現代輕奢基調。


微信圖片_20200609164518.jpg微信圖片_20200609164521.jpg



不同階度的灰色傳遞出和諧統一的視覺體驗,各色的抱枕和裝飾畫又豐富了空間層次,顯得溫暖而有活力。


微信圖片_20200609164524.jpg


客廳望向餐廳視角,開放的布局提升空間使用率。



餐 廳  Dining Room


微信圖片_20200609164527.jpg微信圖片_20200609164530.jpg



餐廳,深色大理石臺面餐桌搭配灰、藍布藝餐椅,保證了舒適的用餐體驗。



廚 房  Kitchen


微信圖片_20200609164532.jpg


廚房選用便于清潔的大尺寸深色地磚,操作臺呈平行布局,一側延伸至陽臺設計成簡易的吧臺,拓展功能空間。



臥 室  Bedroom


微信圖片_20200609164536.jpg微信圖片_20200609164538.jpg


主臥,在黑與藍的深沉組合中點綴了活力的芥末黃,幾何紋理的墻布裝飾不作浮華堆砌,完美契合男生硬朗的氣質。


微信圖片_20200609164541.jpg

次臥留作客房使用,父母來時可以住,所以整體布置簡單,色彩是素凈的暖灰,提供最基本的使用功能即可。



| 地址:世貿麗晶城

| 面積:120㎡

| 風格:現代輕奢

| 設計施工:浙江南鴻裝飾


免費

免費申請戶型規劃

專屬設計師免費1對1全程服務

  • m2

已經有3792人申請

24小時免費咨詢電話

400-8800-618

?
裝修報價

你家預算

108080

  • m2

咨詢熱線:400-8800-618

*為了您的權益,您的隱私將被嚴格保密

×