當前位置 : 網站首頁 > 裝修資訊 > 200㎡現代極簡 | 全屋深色?夠大膽,夠硬核!

200㎡現代極簡 | 全屋深色?夠大膽,夠硬核!

微信圖片_20210408093229.jpg

黑色擁有謙虛與傲慢兩種特質

慵懶隨性卻神秘莫測

是一種最有深度的顏色


——山本耀司




【項目·信息】

地址 / 華瑞晴廬

戶型 / 三室兩廳

面積 / 200㎡

風格 / 現代極簡

設計施工 / 浙江南鴻裝飾



01.



客戶需求


本案的男業主是位個體戶老板,事業有成,性格熱情開朗,十分好客,由于夫妻二人目前沒有小孩,父母也是偶爾來住,對房間的需求并不大,因此戶型從原來的5房3衛改為了3房2衛,并盡可能擴大客餐廚的面積,來滿足業主的會客需求。


微信圖片_20210408093245.jpg



02.



裝飾亮點


“人內在的細膩與深切的情感,需要與之對等的空間來承載。灰與黑,看似簡單平靜,卻蘊含著無窮的魅力。”


微信圖片_20210408093249.jpg


屋主偏愛深色系,因此設計師精細地調配深色在空間中的比例,運用護墻板、大理石、皮革等質感材質,借助燈光效果,為他們打造了這個頗具神秘感和高級感的暗色空間。



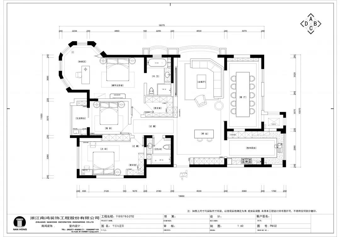
03.



戶型分析



微信圖片_20210408093253.jpg

& Design Drawing


1、進門靠墻增加一組鞋柜以提升玄關收納。

2、原戶型中的兩個房間合并成餐廳區域,并與客廳打通,使人一進屋便能感受到公空間的開敞氣勢。

3、原有的一個衛生間改造成衣帽間,將主臥打造成一個包含休閑區區、寬敞主衛、衣帽間在內的豪華套間。



04.



設計落地


客 廳

微信圖片_20210408093256.jpg微信圖片_20210408093259.jpg




很多人酷愛深色

與其說天性愛低調

不如說是深色所散發出的靜謐氣質

恰好與渴求安寧的內心產生了共鳴






灰與黑打造的客廳

洋溢著高級感與神秘氣質

豐富的紋理、材質變化

在空間內形成一種微妙的和諧





熱情張揚的紅

與深沉神秘的黑

兩相對立的色彩語言

帶來十足的視覺沖擊力


餐 廳





& Dining Hall


黑色的皮革餐椅

搭配高顏值的大理石餐桌

打造精致的多人用餐環境





餐廳做整面酒柜

置入暖黃燈帶

既是酒水的完美收納

又是一處身份品味的象征


廚 房

微信圖片_20210408093330.jpg微信圖片_20210408093332.jpg






玄關往客廳的過渡區域

安置精心打造的吧臺

成為過道口的一處個性風景

也是日常的簡餐區


微信圖片_20210408093340.jpg


廚房擁有標準的U形操作臺

儲物充足,動線流暢

深色櫥柜與臺面

完美塑造一體式空間感


臥 室



微信圖片_20210408093343.jpg


主臥承襲整體的暗色風格

深沉的灰黑色打底

傳達平和寧靜的空間情緒


微信圖片_20210408093346.jpg


豪華的主臥套房

包含休閑區、主衛與衣帽間

擯棄了所有多余的裝飾

只保留每一件必需的家具


微信圖片_20210408093348.jpg


獨立衣帽間設計

黑色柜體內藏有燈帶

酷雅有型


微信圖片_20210408093352.jpg


純粹的黑構建理性的質感

透過白色紗簾進入室內的日光

讓客臥空間

簡潔中帶上了變化


微信圖片_20210408093355.jpg


次臥床尾

安排書桌椅與書架

灰色的墻布

排除一切冗余

力求沉穩大氣


衛 生 間

微信圖片_20210408093359.jpg





& Bathroom


經過戶型調整

主衛內部更顯寬敞

浴缸與淋浴區分居兩側

功能區的豐滿

是給生活最大的舒適


微信圖片_20210408093410.jpg


次衛風格與主衛相似

石紋瓷磚搭配木質臺盆柜

淋浴區內設置壁龕

視覺舒適,實用性強


免費

免費申請戶型規劃

專屬設計師免費1對1全程服務

  • m2

已經有3792人申請

24小時免費咨詢電話

400-8800-618

?
裝修報價

你家預算

108080

  • m2

咨詢熱線:400-8800-618

*為了您的權益,您的隱私將被嚴格保密

×