
【白馬山莊】143㎡現代輕奢,玻璃與金屬的完美組合!


【項目·信息】
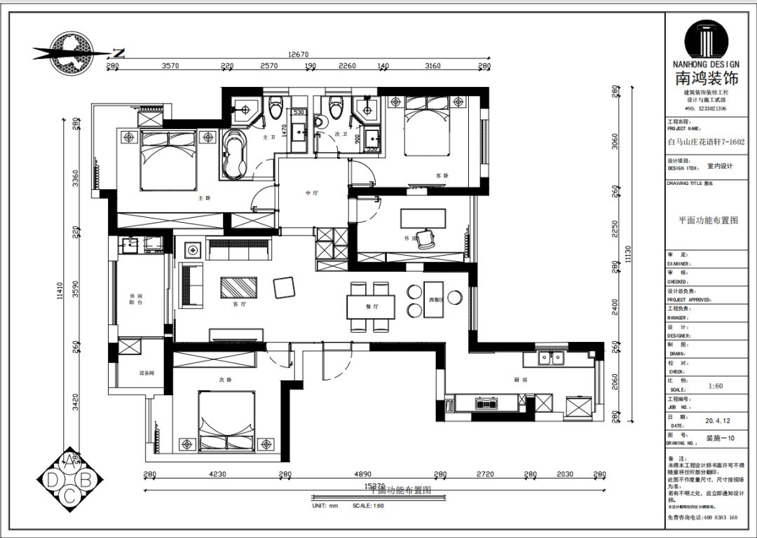
地址 / 白馬山莊
戶型 / 四室兩廳
面積 / 143㎡
風格 / 現代輕奢
設計施工 / 浙江南鴻裝飾
客戶需求 ?
屋主是位大學老師,性格開朗健談,喜愛品茶、品酒。這套房子是屋主為方便上班而購置的,平時都是自己住,裝修風格上總體定位在休閑享受,同時要能突出現代輕奢的精致感。
裝飾亮點 ?
本案的主材有大理石,木飾面,金屬,絨布,皮革等,整體大氣美觀,黑白灰中點綴有寶藍、愛馬仕橙等個性色彩,質感細節融匯于整個空間。

戶型分析 ?

?優缺點
優點:廚房外及書房都是贈送空間,空間利用率比較高。
缺點:①高層結構剪力墻體比較多,因此可改動性不大;②南北進深較深,而且客廳外陽臺屬于內陽臺,所以這塊區域的采光不夠好;③入戶門正對上了次衛生間。
?優化改動
①進門做端景,在端景后面劃出了一塊儲藏區域,減少了過道的進深;②對主臥格局進行了細微調整,形成一個中廳,增加了整個空間的靈動性;③廚房區域把原設備平臺擴充到了廚房里面,使內部使用空間更合理。
01.
客廳
LIVING ROOM

客廳以白灰為主基調,寶藍色絨布主沙發搭配大理石茶幾,空間疏密有致,輕奢氛圍濃厚。

電視背景墻用爵士白石材結合木飾面,沉穩耐看,深藍的窗簾布與沙發色調呼應,十分具有質感。

空間內的輕奢精致與現代的簡約美感結合得恰到好處,吊頂一路鋪展至餐廳,南北連貫性極好。

木飾面隱形門背后為次臥空間,顏色亮麗的古典瓷器綴于其中,成為點睛之筆。
02.
餐廳
DINING ROOM


餐廳選用大理石面的餐桌搭配皮藝餐椅,金屬腳增添精致,頂面無主燈足夠簡潔大氣。靠窗臺一側打造了西廚吧臺,平常可以做做簡餐,用來吃早飯或品酒品茶都是很方便的。


為放大空間感和彌補采光,餐廳一側采用鏡面裝飾,加上黑色金屬嵌條,玻璃與金屬的完美配合,帶出優雅的格調。
03.
過道
CORRIDOR

白色的墻頂與房門帶來清爽感受,頂部依然采用深色線條勾勒,空間畫面不減純粹。
04.
臥室
BEDROOM


主臥背景墻應屋主的喜好選用了淺色的藝術墻紙,沿窗打造休閑飄窗,床尾則是整排的定制柜體用作日常收納。主衛與睡眠區之間以玻璃相隔,改善了暗衛采光。
05.
書房
STUDY ROOM

格調滿滿的書房空間,布置精簡但非常有儀式感,一側是深色置物柜,提供充足的空間收納書籍與各種藝術擺件。
06.
衛生間
BATHROOM

主衛內部寬敞,功能區豐富,浴缸與淋浴區雙設置能帶給屋主最大的便利。

色彩是點亮空間最好的助劑,臺盆柜選用鮮亮的橘紅色調,搭配黑色的臺面與五金件,原本低調的衛浴空間也有了張揚的一面。
07.
局部
DETAILS



上一篇:它,或是未來最流行的隔斷之一?!
下一篇:開門見廳有救了!
免費
免費申請戶型規劃
專屬設計師免費1對1全程服務
已經有3792人申請
24小時免費咨詢電話
400-8800-618
你家預算
108080元