
溫溫柔柔的她,溫溫柔柔的一所單身雅居
一個嶄新的空間,
充滿不曾使用過的時間。
沾著光、伴著風,
于是變成了最好的日子。
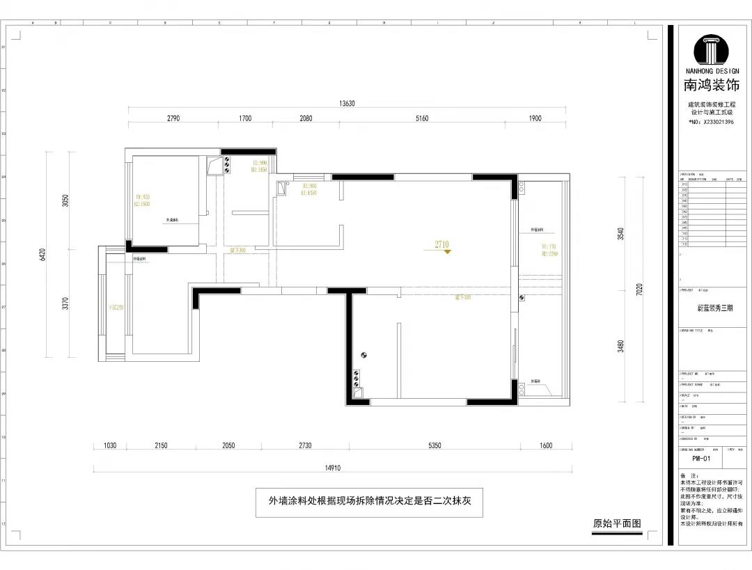
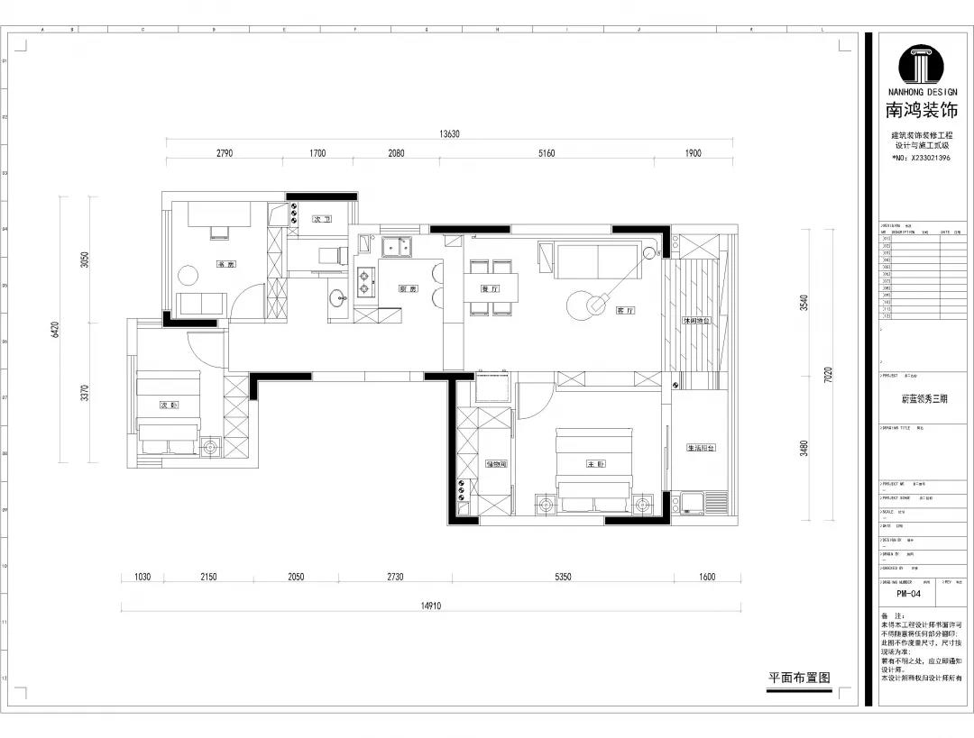
【項目·信息】 地址 / 蔚藍領秀 戶型 / 三室兩廳 面積 / 89㎡ 風格 / 混搭風格 設計施工 / 浙江南鴻裝飾 客 戶 需 求 本期的屋主是位性格非常溫柔可人的漂亮小姐姐,95后從事英語老師工作的她,喜愛陽光喜愛植物,喜愛生活中一切美好的事情,目前單身獨居,希望自己的這個小窩能擁有豐富的儀式感和幸福感。 △放送一波小姐姐的美照! 裝 飾 亮 點 室內以木、白色為主基調,構建柔和溫暖的生活場域。弧形元素的使用,讓線、面的構件沿著內在結構有條不紊地鋪展開,帶來富有韻律的美感。 戶 型 分 析 原戶型比較狹長,公共空間略顯局促,進門視野不夠開闊。 ▼優化改動 1、進門做定制柜組合上長虹玻璃隔斷,滿足儲物需求的同時讓視野也能透過去,見光不見影。 2、廚房改為開放式,提升空間利用率,開闊視線。 3、客廳一側的陽臺設計為了休閑地臺。 4、雙陽臺中間用弧形門洞打通,增強互動性。 5、生活陽臺的洗衣機烘干機外側以防腐木柜門包裹,美觀實用。 01. 玄關 ENTRANCE 玄關定制了尺寸適中的柜子,中部擱板延長拉伸造型,并搭配長虹玻璃,避免入戶直視廚房。 02. 客廳 LIVING ROOM 至簡的軟裝布置,帶來心無旁騖的寧靜感受。開放的設計連通不同功能區,保證室內動線的流暢、連貫。 原木色與白色是室內設計中的一對黃金拍檔,二者結合,徐徐散發溫潤悠長的氣質。背景墻的弧線飽含著溫柔,頂部無主燈設計則更顯簡潔。 客廳包進陽臺完善采光,并改造為地臺,提供一方休閑好去處。 午后的一杯清茶,正是優雅慢生活的開始。細品芳茗,唇齒間茶香縈繞,靜享一段悠然的閑暇時光。 休閑陽臺與生活陽臺之間用弧形門洞打通,增強互動感。 03. 餐廚空間 KITCHEN | DININGROOM 具有儀式感與煙火氣的開放式餐廚空間,U型廚房布局在餐桌一側延伸出吧臺,并以不同的材質區分場域。餐廚交界處以木皮包裹墻頂面,并設計了擱板用來收納酒品。 04. 臥室 BEDROOM 主臥的氣質與主人相配,溫婉柔和,整體的氛圍感主要依靠背景掛畫、潔白的羽毛燈和吊頂的雕花細節來加以提升。 臥室內用來收納衣物的衣帽間區域,并嵌入了主人日常化妝所需的梳妝臺。 05. 書房 STUDY ROOM 書房延續了全屋的溫柔格調,選用黑色柜體,色彩對比鮮明,塑造層次感。 06. 衛生間 BATHROOM 衛生間做了干濕分離,白色的石紋瓷磚鋪墊出整潔有序的基調。 -- ? 現場施工圖



















免費
免費申請戶型規劃
專屬設計師免費1對1全程服務
已經有3792人申請
24小時免費咨詢電話
400-8800-618
你家預算
108080元