
銀億東岸 | 擁有讓人一見鐘情的“高級臉”是種什么體驗?

客觀世界的視覺現象本身是無意義的,
有意義的東西是感覺。
--馬列維奇
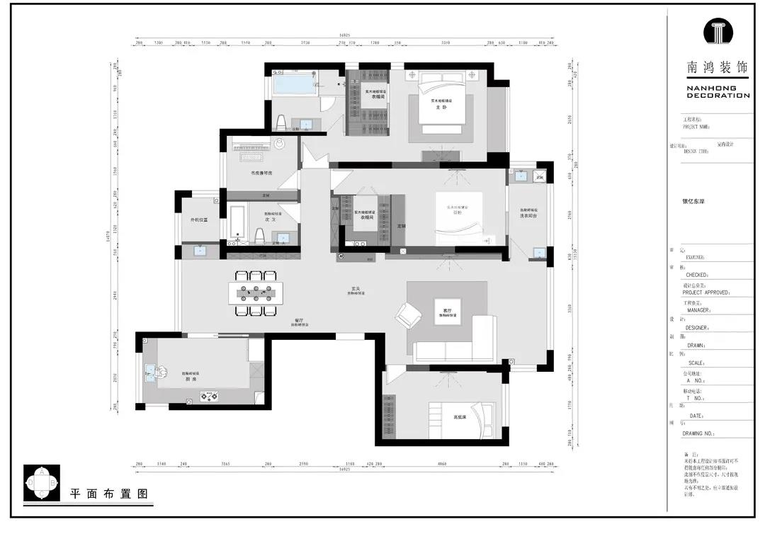
【項目·信息】 地址 / 銀億東岸 戶型 / 四室兩廳 面積 / 200㎡ 風格 / 現代簡約 設計施工 / 浙江南鴻裝飾 1 關于作品 本案以現代簡約為主題,簡潔明快的設計風格為主調,著力體現家的精致與個性,符合現代人的生活品味。 公共區域整體采用暖咖和黑、白色調,溫和親切又帶著現代感的利落灑脫,木格柵增強視覺效果,軟裝上則重點用橙色點綴,烘托溫馨氣氛與活力感受。 2 戶型圖 3 設計落地 玄關 ENTRANCE 玄關端景處一幅格外醒目的復刻畫,大色塊的紅彰顯熱烈、前衛,寓意主人對新生活的愛和熱忱,從今往后,要把每一天都過得“熱氣騰騰”! 客廳 LIVING ROOM 客廳,暖咖色伴隨著溫柔的觀感,讓時光也仿佛靜止于此。沒有特別多收納設計,這里的一切布置均以“美”為第一要義。 電視背景墻的設計,低調中透著華麗。高顏值的大理石磚搭配錯落有致的木格柵,冷暖結合,細節處再點綴光影,簡潔而富有格調。 木質格柵,素來自帶一種東方禪意之美,虛實相生,正是架構意境的獨到方式。木飾面板中藏起通往次臥的房門,視覺高度統一。沙發與茶幾選擇低矮款式,有利于縱向拉伸層高。 餐廳 DINING ROOM 一個優秀的餐廳,光靠視覺,就能成功挑動你的味蕾,再平凡的食物也因此裹上了一層美好滋味。 整排餐邊柜兼做酒柜,玻璃柜內藏酒,儲物柜里存放食品,實用性與美觀度都是一流。窗邊做了小水吧,延續廚房的功能,餐前餐后的手部清潔也更方便。 在這里每天給孩子做一頓愛心早餐,給愛人煮一壺香醇的咖啡,幸福的感覺就這樣漸漸氤氳開來。 廚房 KITCHEN 廚房寬敞明亮,黑色櫥柜較一般櫥柜而言更能凸顯質感,功能設備完善,在吊頂上也做足了功夫,造型感與線條感呼應整體風格。 過道 CORRIDOR 溫潤的木材非常容易給人親近的感覺,無形中就消弭掉空間與居者的距離。過道一側設計儲物區域,層架上適合擺放書籍、小飾品等,空間瞬時生動了起來。 臥室 BEDROOM 主臥延續公共區域的色調,米灰色硬包和木飾面,讓溫暖、淡雅的味道徘徊其中。一盞暖意小吊燈垂下,增強空間的調性,小飄窗則賦予臥室更多的浪漫色彩,和對生活的美好想象。 次臥,皮藝、布料、金屬與線條的融合,交匯出高品質精致感。 粉色是兒童房一直在流行的主題,許多女孩子的夢里或許都有這樣一個如童話般的飄著粉紅泡泡的房間吧~

















上一篇:洗澡這件小事,淋浴好還是浴缸勝?
免費
免費申請戶型規劃
專屬設計師免費1對1全程服務
已經有3792人申請
24小時免費咨詢電話
400-8800-618
你家預算
108080元