當前位置 : 網站首頁 > 裝修資訊 > 【世茂西西湖】感受一下,那來自塞納河畔的浪漫微風~

【世茂西西湖】感受一下,那來自塞納河畔的浪漫微風~

微信圖片_20210922095407.jpg


【項目·信息】

地址 / 世貿西西湖

戶型 / 三室兩廳

面積 / 91㎡

風格 / 現代法式

設計施工 / 浙江南鴻裝飾






本案為91㎡現代法式風格作品。現代法式摒棄傳統法式繁復、冗雜的裝飾造型與甜膩的色澤,通過淡雅的色調,簡潔的幾何線條和典雅時尚的陳設軟裝,來打造更符合現代人喜好的生活空間。


微信圖片_20210922095418.jpg

微信圖片_20210922095420.jpg


業主夫妻倆,一位是性格沉悶的工程男,一位是熱情開朗的設計女,彼此志趣相投,性格互補,優雅的法式,給這個甜蜜小家庭增添了更多美妙情趣~



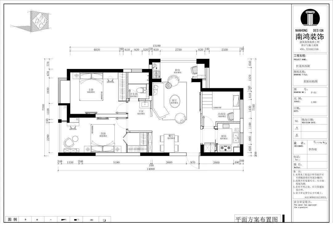
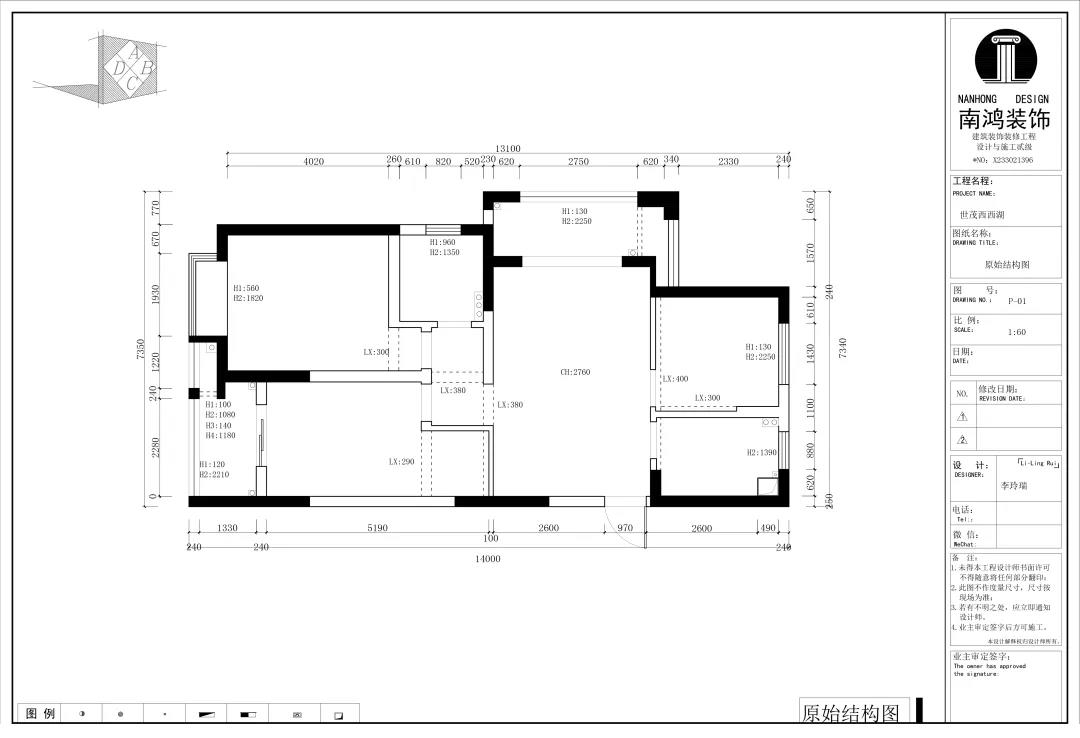
戶型分析


微信圖片_20210922095423.jpg

▲原始結構圖


微信圖片_20210922095426.jpg

▲平面設計圖


①衛生間做干濕分離。

②兒童房的門洞方向更改,完整電視背景墻效果。

③主臥和次臥交換位置,次臥陽臺打通。

④縮小主衛面積,墻體后退得以嵌入一個大衣柜。





餐 廳


入戶門進來即見餐廳。戶型面積不大,公區域都盡量打開讓視野更開闊。




硬裝整體簡潔,墻面可見石膏線花紋裝飾,借此強化一定法式空間意象。餐桌椅、吊燈的造型選擇也都偏現代,空間中奢與簡的分寸把握得恰到好處。


微信圖片_20210922095435.jpg微信圖片_20210922095439.jpg





綠色作為本案的點綴色,可以說貫穿了幾乎各個分區之中,鮮活的生命力讓人過目難忘。




客 廳


微信圖片_20210922095442.jpg


客餐廳一體式設計是小戶型的常見選擇,也更符合現代人的生活習慣。灰白主色保持整體低調,局部墻面以飽和度高的綠色乳膠漆涂刷,空間被提亮不少。




客廳采光良好,沙發背景墻連接干區的位置做一個小的半高柜,提升空間利用率。軟裝家具布置則用簡潔的設計手法將法式的古典優雅和現代的簡約時尚相結合,使得空間既有休閑感受,又不乏藝術氣息。


微信圖片_20210922095454.jpg


經過設計調整,電視背景墻的效果更加完整,深淺色調做左右兩塊分界,以石膏線裝飾則更顯精致。




過 道


微信圖片_20210922095457.jpg


拱形門洞也被應用在這里,作為歷史悠遠的一種經典建筑元素,本身就很契合各種帶古典意味的家居風格。




廚 房


微信圖片_20210922095457.jpg


廚房以長虹玻璃門隔絕油煙,保證內部的私密性,也實現了采光的通透感。冰箱被移至過道,釋放內部更多空間。


微信圖片_20210922095459.jpg


廚房采用U型布局,動線流暢,烹飪區、操作臺和洗滌區都有各自獨立的空間,互不打擾。




臥 室


微信圖片_20210922095505.jpg


主臥,青草綠墻布做背景裝飾,留白保持簡約調性,一幅婚紗照訴說著夫妻二人簡簡單單、明明白白的甜蜜愛情故事。





光源除主燈外,床頭兩側各有布置,一邊長臂燈一邊吊燈的不對稱設計,讓臥室空間顯得更加有趣,金屬材質呈現輕奢美感。



微信圖片_20210922095512.jpg微信圖片_20210922095514.jpg



長輩房的背景、色彩選擇需要貼合老人的喜好,選用橙色主色,帶來如陽光般的燦爛、溫暖感受。


微信圖片_20210922095516.jpg


夫妻二人目前還沒有孩子,這個房間預備做以后的兒童房,布置相對簡單,方便將來調整。




衛 生 間



衛生間將干濕區域分離,洗漱臺盆柜、壁柜與旁邊打造出的半高柜體可將瓶瓶罐罐都收入其中,保證視覺上的清爽。


- END -


免費

免費申請戶型規劃

專屬設計師免費1對1全程服務

  • m2

已經有3792人申請

24小時免費咨詢電話

400-8800-618

?
裝修報價

你家預算

108080

  • m2

咨詢熱線:400-8800-618

*為了您的權益,您的隱私將被嚴格保密

×