當前位置 : 網站首頁 > 裝修資訊 > 精裝房改造要點,總之就是拒絕土氣!

精裝房改造要點,總之就是拒絕土氣!




買房,毫無疑問是我們人生中的一項大事。近兩年,樓市的發展起伏不定,宏觀調控政策也越來越多,不久前,住建部就提出了精裝房市場目標的一個概念,由此可見,未來樓市的精裝修銷售很可能會成為一種趨勢。


精裝房拿到手,很少有人會直接住進去,畢竟這個原汁原味的精裝房嘛,屬實是一般人接受不了的...


微信圖片_20220223103305.jpg


不好看不實用,是精裝房的通病,業主都有自己不同的需求,諸如:換掉地板,墻壁粉刷,定制儲物柜,增加采光等等,我們該如何對癥下藥,讓自家的精裝房來場華麗麗的改造呢?本期的這些思路可以供大家參考哦,一起來看看吧~




所謂的精裝房,是指開發商已做好基本的天花、墻面、地面的硬裝處理,以及水電、照明、廚衛、潔具等基本的功能性硬件設施的房子。


精裝房幫我們跳過了普通毛坯房從零開始的過程階段,但對于追求個性裝飾的現代人來說,卻也存在著一大堆的毛病,“難看”首當其沖。


微信圖片_20220223103309.jpg

▲“公式化”的精裝房


一般我們對精裝房的設計改造可以從以下幾個方面入手:


空間布局改動


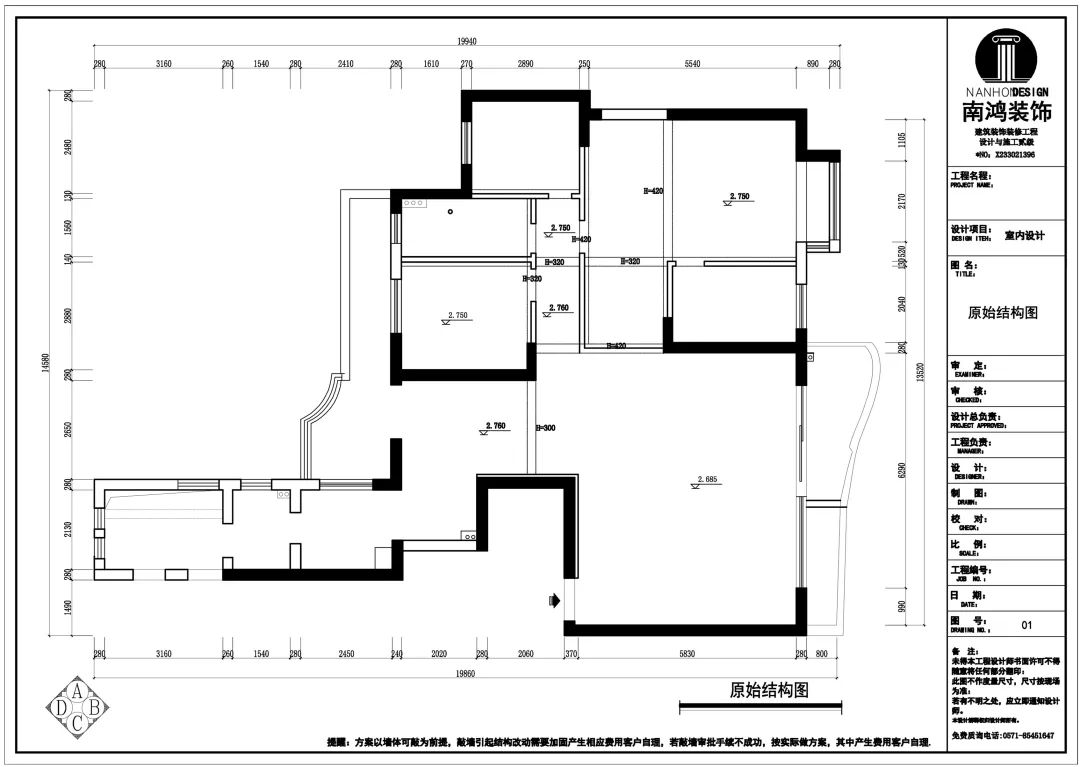
設計注重的不光是房子本身,還有業主的生活方式。原始開發商設定的戶型結構可能并不符合我們日常的生活需求,存在諸如儲存空間不夠、房間數量過多、動線雜亂等問題,這時候就需要設計師幫我們重新調整戶型結構,拆除和新建墻體,從業主個人的生活習慣出發,打造出理想的居家環境


▼原始結構圖
微信圖片_20220223103314.jpg微信圖片_20220223103312.jpg
▲平面戶型圖



墻頂地改動


墻頂地占據空間內的主視覺,決定了整個家的風格效果,基本是一定會改動的。


一般精裝房的墻面都是白花花的,或者貼了那種很丑的壁紙,我們可以按自家的風格需要給墻面刷上顏色,或是貼墻布、做造型之類的,來提升檔次感。


微信圖片_20220223103317.jpg


精裝房標配的房門與木地板顏色統一,深色、很老氣,不符合年輕人的審美,裝修改造的時候就需要更換新的房門、木地板。


微信圖片_20220223103322.jpg


同理還有天花板,如果你想要無主燈設計,或是安裝中央空調之類的,就需要對吊頂造型加以重新改造。


微信圖片_20220223103324.jpg



柜體定制


豐富的儲物柜是一般家庭都需要的,那么多物品需要有足夠的空間儲存才能讓家保持干凈的模樣。精裝房標配的柜子不完整,而且質量也不敢保證,所以柜體定做也是必須的一個項目。


微信圖片_20220223103327.jpg



軟裝改造


除了硬裝上的拆拆改改,后期的軟裝設計搭配同樣重要,最終能不能達到自己想要的那個家的效果,還要靠空間內精巧的軟裝布置。


微信圖片_20220223103330.jpg


像沙發、窗簾、地毯這種占大范圍色彩的,能給人帶來最直觀的視覺感受,是軟裝著重要表現的部分。另外,燈具、裝飾畫、綠植等也是室內軟裝搭配的重要組成部分,不可忽視。


微信圖片_20220223103335.jpg


多種風格裝飾元素參考


微信圖片_20220223103341.jpg

●楓橋里-黑白灰主打現代簡約風


微信圖片_20220223103344.jpg

●望江府-多彩溫馨的混搭風


微信圖片_20220223103346.jpg

●盛世天城-精致優雅的現代輕奢風


微信圖片_20220223103348.jpg

●世茂西西湖-浪漫有情致的現代法式風


微信圖片_20220223103350.jpg

●豐匯城-簡約大氣的北歐風



ps:部分圖片來源于網絡,如有侵權,請聯系刪除!




免費

免費申請戶型規劃

專屬設計師免費1對1全程服務

  • m2

已經有3792人申請

24小時免費咨詢電話

400-8800-618

?
裝修報價

你家預算

108080

  • m2

咨詢熱線:400-8800-618

*為了您的權益,您的隱私將被嚴格保密

×