當前位置 : 網站首頁 > 裝修資訊 > 【印江南】四室改兩室,客廳書房一體,餐廚又玩出了新花樣!

【印江南】四室改兩室,客廳書房一體,餐廚又玩出了新花樣!





微信圖片_20220309160437.jpg


【項目·信息】

地址 / 保利·印江南

戶型 / 兩室兩廳

面積 / 139㎡

風格 / 現代簡約

設計施工 / 浙江南鴻裝飾





1

關于作品


本案的常居人口為2人,女兒一家在同小區。房間不需要那么多,所以原戶型的4室被改為2室,餐廳直接納入廚房的范圍,廚柜連接卡座順勢成為一體,同時移門做成內藏吊軌無框移門,需要時可拉上讓餐廚自成一個世界。原進戶次臥改為開放式書房,空間塊面的視野更加開闊。軟裝上使用了較鮮明的顏色對比,使空間不失層次感和溫馨感。



2

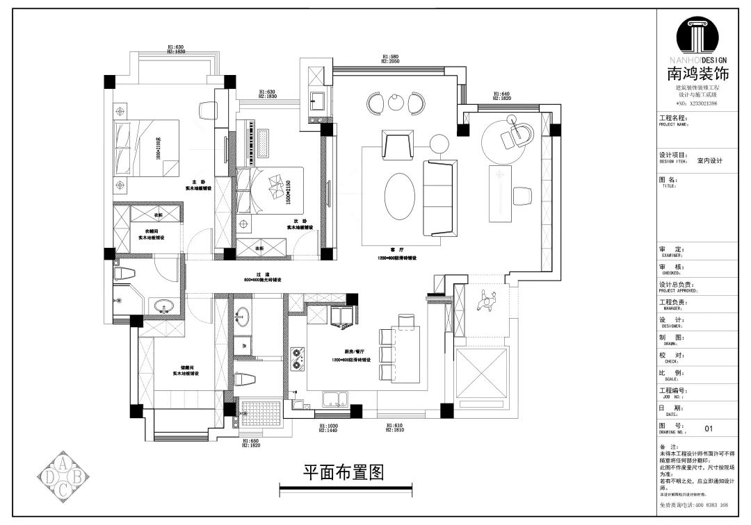
戶型圖


微信圖片_20220309160440.jpg



3

設計落地


客廳

LIVING ROOM


微信圖片_20220309160442.jpg


公區域選用柔和的淺色調,視覺上顯得更加開闊,軟裝則是適度的深色和亮色,讓空間有了沉著的重心。局部亮黃色的點綴,賦予家跳脫的個性。閑坐在此,感受室外明晃的光線,霎時仿佛能感知到生活的真諦。


微信圖片_20220309160445.jpg


電視背景墻以收納的形式呈現,材質、色調的組合加上橫豎線條比例的裁分,展現出具有靈動感的視覺效果。棕色的圓形皮藝茶幾小巧可愛,低調沉靜。

微信圖片_20220309160450.jpg微信圖片_20220309160449.jpg微信圖片_20220309160446.jpg


空間的設計與選材上均秉承現代簡約的原則,強調理性而寧靜的室內氛圍,軟性的家具面料柔和提升心靈感受,營造材質與情緒的記憶。



書房

STUDY


微信圖片_20220309160453.jpg


書房做敞開,與客廳無縫銜接,整面的收納柜體兼顧場域的舒適度和機能性,正中下方因地制宜地嵌入一個電子壁爐,成為空間一大亮點。

微信圖片_20220309160459.jpg微信圖片_20220309160457.jpg微信圖片_20220309160455.jpg


書桌椅的曲線線條中和整體的剛硬感,伴隨著綠葉的點綴,在此簡約設計之中,有一份詩意盎然的生活格調在潺潺流動著~



餐廳

DINING ROOM


微信圖片_20220309160501.jpg


客廳望向餐廳,無框移門讓兩塊區域之間既是分隔又能隨時相連,也不會影響采光。

微信圖片_20220309160506.jpg微信圖片_20220309160503.jpg



餐廚互通,廚柜順勢延展設計為餐廳的L型卡座,一體成型讓視覺更加流暢,翻了倍的容坐量讓熱鬧的親友歡聚成為這個家隨時可有的景致。


墻面結合藝術涂料和木飾面,左上方嵌入酒柜,再加上暗紅色的餐椅,儼然是家居個性最鮮明的展示。



廚房

KITCHEN


微信圖片_20220309160508.jpg


開放式設計,黑白灰的色調、隱藏式把手、利落的線條,廚房顯出匹配外表的精致大氣。



臥室

BEDROOM


微信圖片_20220309160511.jpg


微信圖片_20220309160513.jpg


主臥墻面用素色的墻布包裹,隨性愜意,床尾連著柜體打造梳妝區,軟裝上多用撞色搭配,空間寧靜而不寡淡。



衛生間

BATHROOM


微信圖片_20220309160516.jpg


公衛,過道收納進洗衣機、烘干機,臺上盆提升顏值,淋浴間干濕分離,保證日常使用的舒適度。


- END -




免費

免費申請戶型規劃

專屬設計師免費1對1全程服務

  • m2

已經有3792人申請

24小時免費咨詢電話

400-8800-618

?
裝修報價

你家預算

108080

  • m2

咨詢熱線:400-8800-618

*為了您的權益,您的隱私將被嚴格保密

×