
130㎡裝出230㎡的效果?這個家的魅力還不僅于此!
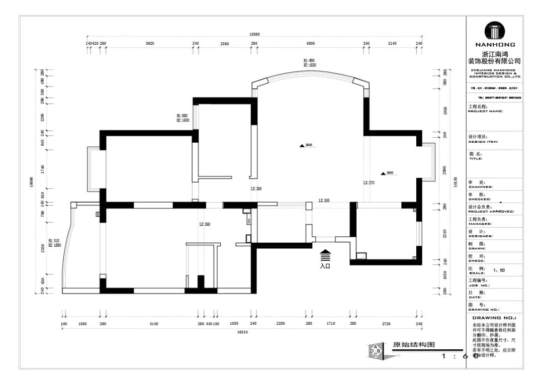
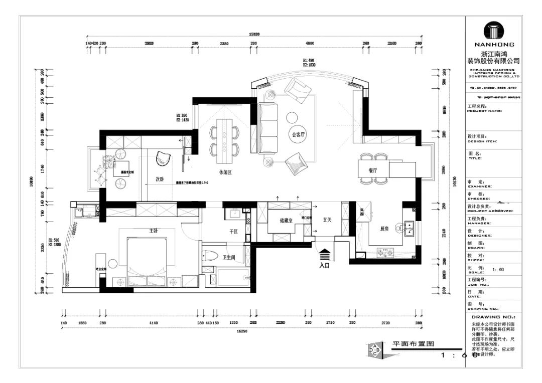
項目信息 / 地址:星河明苑 城市:中國 杭州 戶型:兩室兩廳 面積:130㎡ 風格:現代風格 設計施工:浙江南鴻裝飾 關于本案 About The Design 本案是業主夫妻的退休住房,一處以他們兩人為單位打造的居所。 首先在戶型上,由三室兩衛改為更符合實際生活需求的兩室一衛,其余空間全部做成開放式,原本130方的房子就因為這份通透感而有了面積加倍的觀感,同時西向的客廳采光和視野都很好,優越的光感無疑也是空間放大的隱形推手。 其次在軟硬裝上,不同于其他凌厲剛冷的現代風格,更強調一份明朗大氣而又淡定從容的氣質,讓居室能表現一種閱盡千帆而又初心不改的返璞歸真之境。同時在臥室這類私密空間的布置上也充分遵循業主個人的喜好,使空間擁有了獨屬的個性。 關于戶型 About The House Type 01. 玄關 Hallway 入戶玄關做了約5cm的下沉,與客廳紋理相近而顏色更深的大理石瓷磚在保持整體性的同時又做出不同空間的區分。 右側定制柜結合換鞋凳和收納的功能,底部留空換放常穿的鞋子,左側則在墻面融入穿衣鏡,供出門整理著裝。 寬闊的過道串聯起家中的其他功能區,不光是動線得到簡化,打破墻體界限的不同空間亦獨立亦融合,自由自在的感覺讓人只想安心地窩在家里,做任何自己喜歡做的事。 02. 客廳 Living Room 客廳以木色和米灰為主線框構中性的溫和質感,兩側背景的塊面、材質與格柵元素相呼應,空間在統一的秩序外還擁有著格外開闊的視野。沙發和茶幾是成套款式,沙發旁留出邊幾的位置,可以隨手擺放書籍、茶杯等,點滴的細節成功延展出生活的極大舒適。 統一的色系,化繁為簡的布局,畫龍點睛的裝飾,營造出靜謐而舒心的起居環境。 03. 餐廚空間 Dining Room & Kitchen 餐廳的布置可以說生動詮釋了何謂“品質生活”,每個角度都保持了幾乎無可挑剔的視覺體驗。 不光是有利落的美感,功能性同樣恰到好處,島臺作為居家料理的一大強力幫手,兼顧餐具收納和操作臺拓展,讓主人可以更方便地享受美食。 定制的餐桌體量輕盈,搭配幾何造型吊燈,流暢的線條傳達輕松愉悅的用餐感受。 開放式廚房空間在顏色搭配與材質選擇上均與外部呼應,塑造出相互獨立但又毫無阻隔的緊密關系。 04. 書房 Study 書房休閑屬性拉滿,抬高的階梯地臺,窗邊的“小床榻”,配合肆意傾灑的溫暖陽光,叫人只想伸個舒服的懶腰,再睡個甜甜的午覺! 除此之外,常規的收納、“客房”和工作臺功能也沒有少,地臺拉出來便是床墊。長虹玻璃移門讓空間保持內外通透的同時又保留下隱私性,偶爾需要安靜思考的時候,拉上這扇門即可。 05. 臥室 Bedroom 家里唯一的臥室是一個寧靜安穩的空間,家具擺設上可以明顯看出主人的喜好,一點中式的元素,與現代風的硬裝結合得很好。睡眠區與主衛間插入山水意境的玻璃隔斷,巧妙做一個國風的小背景,烘托雅致氛圍。 06. 局部 Details




























上一篇:浩澤園 | 光木為引,無限溫柔
免費
免費申請戶型規劃
專屬設計師免費1對1全程服務
已經有3792人申請
24小時免費咨詢電話
400-8800-618
你家預算
108080元