
135方現代風四居室,全屋智能家居,科技感引領都市潮流!


項目信息
/
地址:龍湖春江彼岸
城市:中國 杭州
戶型:四室兩廳
面積:135㎡
風格:現代風格
設計施工:浙江南鴻裝飾

本案業主是個從事IT行業的開朗大男孩,目前單身獨居。平常工作比較忙不太做飯,所以屋里做了開放式廚房。因為自身職業的緣故,他特別希望家是清爽利落同時有點未來科技感的。
居室的整體木作采用冷色系成品科技木,頂面磁吸燈與線性燈的使用,增加現代感的同時讓燈光更加柔和明亮。


設計師依據年輕人的需求,將全屋的燈光、門鎖、窗簾和家電都納入了智能控制系統,塑造出便利關懷與現代主義并行的未來式生活空間。


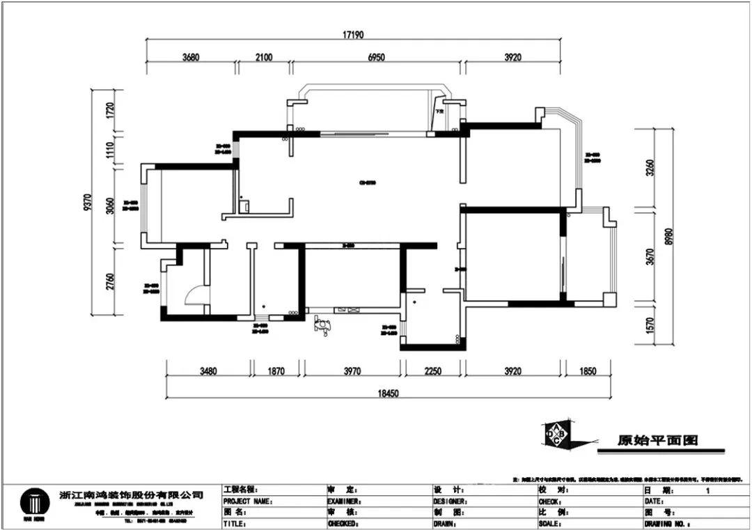
設計改造:
打開廚房空間,和客廳一體;主臥房門移位,內部納入陽臺增加儲物空間,并與次臥形成對稱效果。
客廳
Living Room




客廳納入陽臺,光線充足,空間木作打底,散發著令人心安的氣息。兩種款式的沙發在顏色上形成對撞,豐富空間層次并起到提亮的效果。頂部的點光源均衡分布,線性燈框構區域并延展視線,烘托靜謐柔和的氛圍。
餐廳
Dining Room



入門即見到餐廳的位置,餐區收納兼做了玄關收納。墻面延伸至頂的區域拉出長短不一的燈帶造型,立體感十足,并為餐區營造了一種特別的未來科技感。
廚房
Kitchen


基于業主的生活習慣與戶型優化的考量,我們將廚房與客餐廳打通做一體開放式設計,空間更加開闊通達。中央的島臺可作為餐桌與操作臺的延伸,平常做頓簡餐變得更加方便。深與淺的色調和諧搭配,冷暖適中。
臥室
Bedroom



臥室形態簡潔明朗,棕色和木色搭建沉靜的基調,硬包的背景沉穩耐看,設計以克制收斂的語言為業主打造了這個素雅寧靜的棲息之所。
免費
免費申請戶型規劃
專屬設計師免費1對1全程服務
已經有3792人申請
24小時免費咨詢電話
400-8800-618
你家預算
108080元