當前位置 : 網站首頁 > 裝修資訊 > 【江灣城】光與景的造夢之所,包容下所有的個性與美好!

【江灣城】光與景的造夢之所,包容下所有的個性與美好!

微信圖片_20220809092540.jpg


作品·信息

地址:江灣城

城市:中國 寧波

戶型:五室兩廳

面積:260㎡

風格:現代簡約

設計施工:浙江南鴻裝飾




作品前言
圖片


微信圖片_20220809092554.jpg


本案位于寧波奉化江邊,是一套改善型住房。染色木飾面、淺灰烤漆板以及深色石材等不同材質混搭,呈現層次分明疊加遞進的空間感。設計師規劃了足夠多的儲物區域,這樣即使是多人居住也不會感到拘束擁擠。個性的空間設計,精致的氛圍打光,虛實交錯間,給人全然的放松和休閑。


微信圖片_20220809092558.jpg


#戶型改造分析


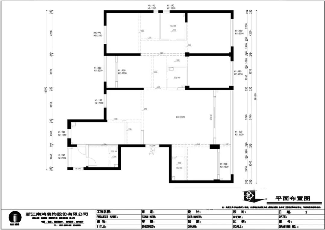
微信圖片_20220809092601.jpg

▲原始戶型圖


餐廳與客廳的比例差距較大,進門左側遮擋視線,顯得空間不夠通透;保姆房、設備平臺、衛生間幾塊區域沒有得到充分利用;戶型中心的暗衛,不利于動線的規劃,客戶對風水也有忌諱。


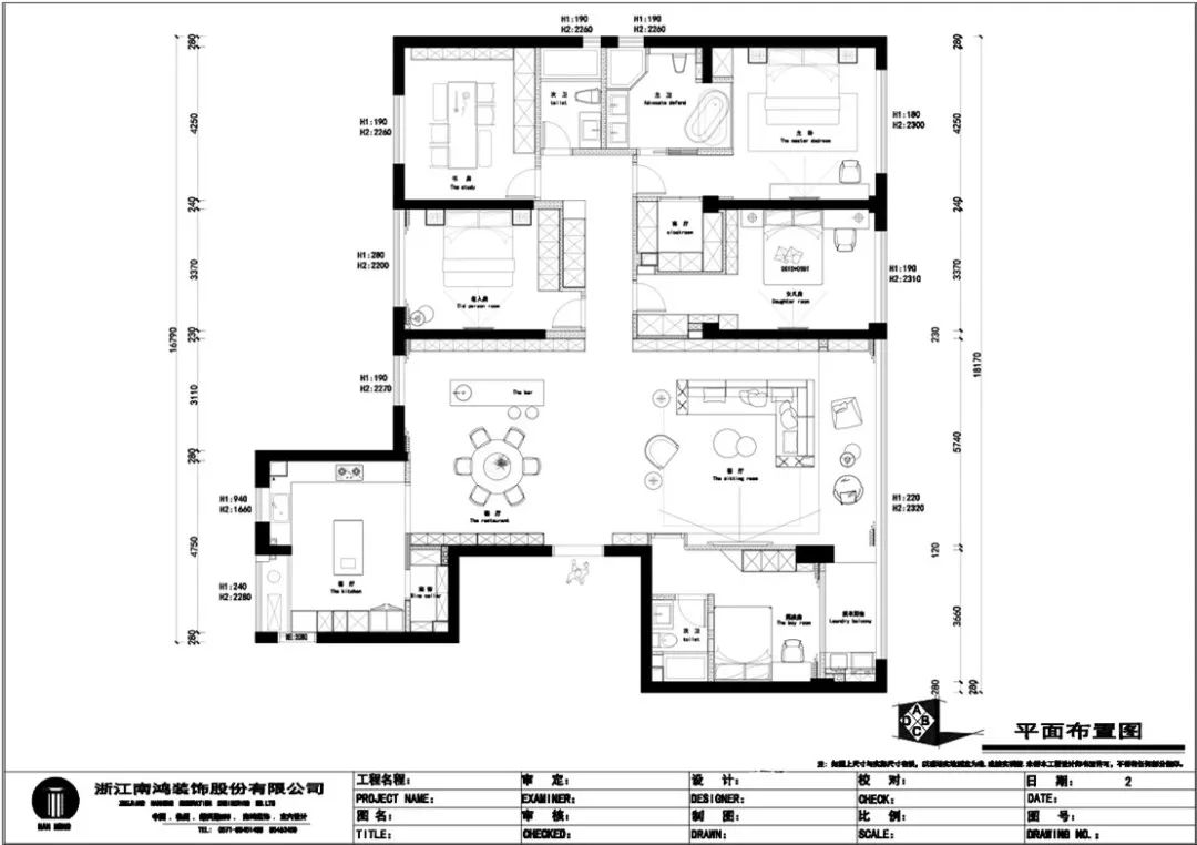
微信圖片_20220809092603.jpg

▲平面設計圖


①打通進門的儲藏間與餐廳,設計了西廚吧臺,餐廳與客廳共同形成一個大的開放式空間。玄關與過道可以延伸視線,給人更多的遐想。

②廚房往西拓展,中間設計島臺,增加下廚時的互動。消防門隱藏在高柜內,生命通道必須保留。廚房矩形規劃完成后,對剩余空間也進行利用,做了一個酒窖來滿足客戶收藏酒水的喜好。

③公衛移到了靠東有窗戶的位置,增加采光和通風。其中一個衛生間給主臥做衣帽間使用,增加主臥的儲物區域。



案例詳解
圖片



>>>>

玄關


微信圖片_20220809092606.jpg


沉寂的木色將親切的自然調性慢慢舒展開來,裝飾舍棄復雜,只以簡練但精巧的設計語言,在這個入戶位置點綴出家的暖意。



>>>>

客廳


微信圖片_20220809092609.jpg


淺淡的素色,馨暖的無主燈設計,自然的紋路,加上適當的石材搭配,共同組建出一個包容感強、舒適愜意的會客場所。


微信圖片_20220809092613.jpg微信圖片_20220809092611.jpg


客廳將簡約的氣質融入到相對板正的家具形態之中,布藝的多人位沙發組合拼接式茶幾,自成一體。沙發背景做儲物與展示柜,電視背景墻選擇了巖板材質,包入客廳的陽臺則設計黑色地臺做出休閑景觀區,與背景墻部分銜接,讓視覺得到延展。


微信圖片_20220809092615.jpg


客餐廳之間沒有明顯區隔,通透的開放式布局讓家庭公共活動區域得到充分拓展。



>>>>

餐廳


微信圖片_20220809092620.jpg微信圖片_20220809092618.jpg


簡約的圓桌餐廳與精致的西廚布置,塑造人間煙火與歲月時光交融的藝術美,開放式行為模式也為家人間的互動創造更多可能。



>>>>

廚房

微信圖片_20220809092624.jpg微信圖片_20220809092622.jpg


廚房選用時尚潮流的克萊因藍,顯得非常清爽有活力。L型設計讓下廚動線通暢,洗菜、切菜、烹炒路徑合理,空間能夠實現最大化利用。


微信圖片_20220809092626.jpg


通頂柜融入冰箱和蒸烤箱,讓立面簡潔。廚房還連接著專門的酒窖空間,酒窖門與廚房移門共用一個門套,視覺連貫性非常好。



>>>>

過道


微信圖片_20220809092628.jpg


空間的每一處轉角都能捕捉到細膩的現代化細節處理。明與暗,光與影,線與面,都很好地通過從頂彎折拉伸至地的燈帶有機結合了起來,將視覺與行走路線在不知不覺中引導至內部的私密空間,并帶來充分的美學效果。



>>>>

臥室

微信圖片_20220809092635.jpg微信圖片_20220809092631.jpg


臥室同樣鋪優雅的魚骨拼地板,沉穩的色調讓溫和與平靜成為空間中可被感知的內容。墻面做出護墻板和木格柵的造型,增添許多層次。內臥與衛浴之間加入通透的玻璃隔斷,幫助導引室內光線。


微信圖片_20220809092637.jpg


男孩房選擇純凈的天空藍作為主色系,與衛浴之間加入了長虹玻璃,菱形造型增添活力俏皮的感受。


微信圖片_20220809092640.jpg微信圖片_20220809092642.jpg


女孩房考慮到孩子的年齡則是一個更加“卡哇伊”的空間,圓潤家具造型可以避免日常磕碰,粉色的墻粉色的柜面,還有軟萌的“兔子床”,空間足夠地靈動有趣,讓孩子能盡情漫游在她的童話王國~



>>>>

書房


微信圖片_20220809092645.jpg


染色黑胡桃木材質搭建起這個深色有氣質的書房,書柜內的隱形燈光起到調節氣氛的作用。



>>>>

衛生間

微信圖片_20220809092652.jpg微信圖片_20220809092650.jpg微信圖片_20220809092648.jpg


住宅氛圍營造關鍵的是要在美學和心理學的基礎上,進行顏色、光線的搭配和室內質感的塑造。衛浴空間以深灰的瓷磚構建,搭配精到的燈光設計,呈現出神秘而優雅的氣質。


免費

免費申請戶型規劃

專屬設計師免費1對1全程服務

  • m2

已經有3792人申請

24小時免費咨詢電話

400-8800-618

?
裝修報價

你家預算

108080

  • m2

咨詢熱線:400-8800-618

*為了您的權益,您的隱私將被嚴格保密

×